トップページ > 観光・文化・スポーツ > 文化・芸術 > 文化施設 > 奈良春日野国際フォーラム 甍~I・RA・KA~ > 貸館のご案内 > 施設のご案内 > レセプションホール2
印刷
ページ番号:16996
更新日:2026年2月27日
ここから本文です。
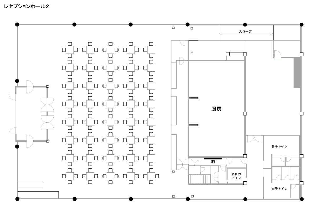
レセプションホール2

レセプションホール2は本格厨房設備(別料金)を備えたイベントスペースで、お気に入りのシェフに来て貰ってのパーティも可能です。
試食もできる新製品発表会や昼食会場、そしてポスター展示、セミナー等幅広くご活用いただけます。
特徴
- インターネット回線使用可
- 自立型スクリーン仮設可(別途費用がかかります)
- 吹抜けの大空間、高天井(高さ4.5~8.5m)
詳細情報
| 階 | 面積(m²) | 天井高 | |
|---|---|---|---|
| 別館1F | レセプションホール2(GIF:38KB) | 482.2m² | 4.5~8.5m |
| 収容人数(人) | 状態 | レイアウト |
|---|---|---|
| ~160 | 通常 | レイアウト(PDF:206KB) |
※机と椅子はサイズ、仕様の異なるものがあります。