トップページ > 観光・文化・スポーツ > 文化・芸術 > 文化施設 > 奈良春日野国際フォーラム 甍~I・RA・KA~ > 貸館のご案内 > 施設のご案内 > レセプションホール1
印刷
ページ番号:16995
更新日:2026年2月27日
ここから本文です。
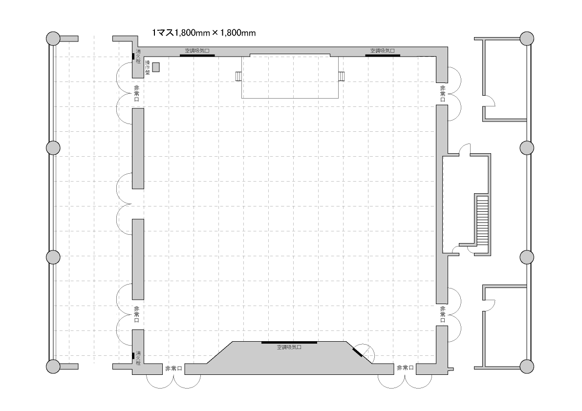
レセプションホール1



レセプションホール1は多目的ホールとして活用いただけます。
能楽ホールで式典、そしてレセプションホール1で記念パーティというパターンでの使用、また国際会議、学術会議においては、メイン会場としての使用はもとより、機器展示、ポスター展示としてもよく使われています。
特徴
- 同時通訳ブース4室有(通訳機器はありませんので持ち込みが必要です。別途費用にてご用意できます。)
- 多彩な調光が可能です。
- 可動型ステージ有(W7.0m×D3.0m)
- 隣接のギャラリースペース(L24.0m×W6.0m)を一体的に使用可。
- インターネット回線使用可。
- 壁面埋込型スクリーン有(埋込型スクリーンの使用は無料。プロジェクター使用等には別途費用かかります。)
- 自立型スクリーン仮設可能(別途費用かかります)
- 付帯控室:2室(別途使用料かかります)
- 天井高4.8m
詳細情報
| 階 | 面積(m²) | 天井高 | |
|---|---|---|---|
| 2F | レセプションホール1(GIF:29KB) | 508m² | 4.8m |
| 収容人数(人) | ||||
|---|---|---|---|---|
| 通常 | シアタースタイル | スクールスタイル | パーティースタイル | レイアウト例 |
| 何も無い状態 | ~420 | ~252 | ~約200 | – |
| レイアウト(PDF:84KB) | レイアウト(PDF:96KB) | レイアウト(PDF:100KB) | レイアウト(PDF:59KB) | レイアウト(PDF:92KB) |
一部有料備品がございます。詳しくは当館スタッフまでお問い合わせください。
施設ご利用例
(JPG:31KB)
展示会
(JPG:57KB)
国際会議
(JPG:43KB)
懇親会
(JPG:59KB)
演奏会